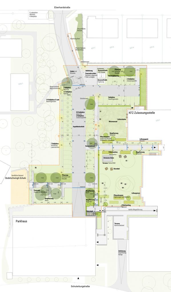
Im Rahmen der Neugestaltung des Parkplatzes für das Landratsamt in Göppingen wird ein funktionales Konzept entwickelt, welches den Besucherstrom optimiert und gleichzeitig eine hohe Aufenthaltsqualität bietet. Dafür wird die bestehende Zufahrt von der Eberhardtstraße genutzt.
Eine klare Formensprache sowie das Materialkonzept und eine durchgängige Pflanzauswahl schaffen im funktionalen Freiraum ein ansprechendes und funktionales Gesamtkonzept.

Neue Wegeverbindungen und Heckenpflanzen geben die Laufrichtung in die jeweiligen Gebäude vor. Pausenflächen für Mitarbeitende werden unter dem schönen Baumbestand angegliedert. Die Aufenthaltsqualität wird durch die Gestaltung von Ruhezonen und Sitzgelegenheiten erhöht. Die Sitzelemente können nach Wunsch auch für sportliche Treffen nach der Arbeit aktiviert werden. Die starke Böschungskante zur angrenzenden Schule wird ebenfalls für den Aufenthalt in den Pausen mit Sitzstufen angeboten.
Die neue Verbindung zum Parkhaus und das Einbinden in das Parksystem regeln das unübersichtliche und „wilde“ Parken in diesem Areal und bieten somit einen benutzerfreundlichen Raum an.

